| NIVEAU | PIÈCE | SURFACE |
Maison, 83m², 4 pièces en vente à Vendargues - 248 000 € *
- Ref 3429180022
- Ref 690
- Type Maison
- Ville VENDARGUES
- Pièces 4
- Chambres 3
- Surface 83 m²
- Terrain 124 m²
- Prix :
248 000 € *
EXCLUSIVITE:
Charmante maison de village d'environ 84 m² habitable avec une cours d'environ 26 m² et une remise de 25 m² au sol !
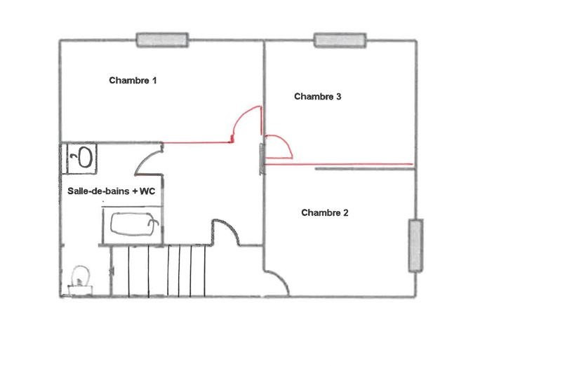
Elle se compose au rez-de-chaussée d'une pièce faisant office de cuisine salle-à-manger, un salon, à l'étage une première chambre d'appoint traversante pour un accès à une seconde chambre, une troisième chambre en partie traversante pour accéder à la salle-de-bains et toilettes.
Moyennant une ouverture et 2 cloisons, vous obtiendrez 3 chambres non traversantes d'environ 13 m², 10 m² et 9 m².
Concernant la remise, il est nécessaire de refaire la toiture et une consolidation évaluée à 12 100 €, une cuve à vin d'environ 13 m² est présente.
Des ouvertures sur 2 niveaux ont été condamné, il est possible de transformer la remise en un logement d'environ 50 m² avec un étage.
Idéal pour stocker, un 2ième logement, des revenus locatifs, une profession libérale !
Côté prestations: fenêtre double vitrage PVC, chauffage gaz à inertie, tableau électrique refait en 2023.
Côté environnement: dans une impasse au calme, à 2 pas du coeur du village et de ces commodités.
Charge vendeur
* Honoraires charge vendeur.
(Bien faisant état d'une délégation de mandat)
Fax 04.67.85.53.78
E-mail : fabregues@abriimmobilier.com
Autour de ce bien :
Découvrez les écoles, hopitaux, commerces ... à proximité
- Bien
- 43.6601313
- 3.962337
- /images/ggmap-marker.png
- click
-
MaisonVENDARGUES - 83 m²






























